Swedish Medical Center - Renovations

Multiple renovation projects were completed at Swedish Medical Center in Englewood, Colorado, including:

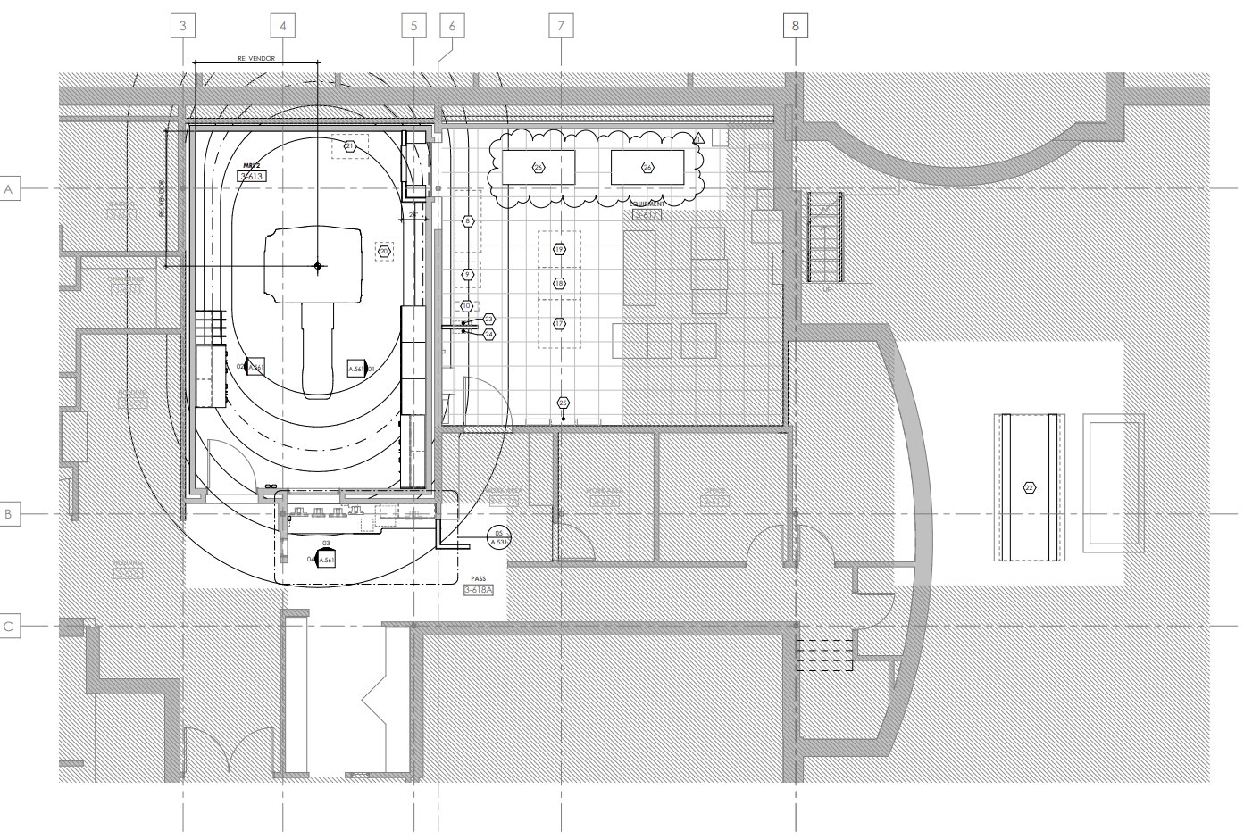
MRI Replacement: Upgraded an existing Siemens MRI to a new 3T system, requiring room renovations with updated lighting and finishes, control desk modifications, roof assembly construction, and new chiller installation.

Storage and Supply Room Renovation: Reconfigured multiple storage areas with MEP system updates, fire wall assemblies, new finishes, and additional office space.

X-Ray Equipment Replacement: Redesigned existing rooms with new spatial layouts and finishes to accommodate new equipment and improved user interfaces.

Previous
Previous

Auraria Bike Shelters

Next
Next

Crestone Community Center